A few weeks ago Disney filed plans with the
South Florida Water Management District which showed in great detail the changes that are being made to
Pleasure Island as part of the conversion to
Hyperion Wharf. One of the Blog's readers passed this information on to us and it's being shared with you today. The 15-page document has so much in it that I've had to limit this article to the most important information contained within. You can click on these documents up to two times to expand them.
 |
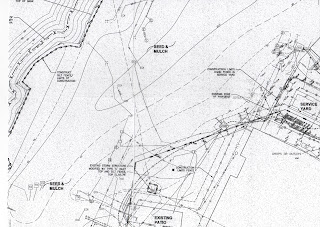
| Tonight we'll look at the so called East End Package and tomorrow night the West End Package. Those of you who speculated in the Comments section that nothing exciting is coming are correct. There has been internet chatter from others who have seen the plans about all the grassy lawn that is to be installed down at the West End. Little did we know that much of the East End has the same future! |
 |
| Before we head over to the clubs, let's look closer at what's planned for the Fulton's Crab House area. We've previously posted photos of the rebuilt Lily Pad area but according to these plans, they're not done there yet. The circular area will have some sort of compass design added on to it, as you can see above. Meanwhile, the area directly along the shoreline of Village Lake adjacent the Empress Lilly steamship will have a wood deck over concrete boardwalk installed. That's a continuation of the same look already installed along the eastern portion of the new Number 1 Bridge from Marketplace. |
 |
| One of the pages shows Rock'n'Roll Beach Club and Motion to be demolished. As we all know, that has already occurred. But it shows the detail involved in such endeavors. |
 |
| This page shows so much detail that I've added my own letters to guide you through the discussion. A) The waterfront Amphitheater is definitely coming. Notice the 6 magical columns that ring it. B) This circular area appears to be the rumored kiosk-type bar/snack bar that will replace PI Live Bar. C) Downhill ramp to make the Amphitheater fully assessable. D) A curved wall adjacent Sosa Cigars appears to allow them to retain their outdoor side-seating area but takes away their current rear-seating area. However, the plans give no detail about that large rectangular area immediately behind them. One can still see the pathway back to the PI restrooms. E) The new pathway heads back to where Motion used to sit and then makes the curve south into the former Raglan Road/Portobello service court. F) Unspecified retail G) Raglan Road (existing). |
|
| | | | | | | |
|
|
 |
| This page shows the new pathway passing through that current service court. Notice that the pathway itself generally follows the side wall of Portobello while the opposite side will offer one or more retail establishments. |
 |
Now here's the saddest news in the entire plan. The Amphitheater and kiosk only take up about half the space that RRBC formerly occupied and none of the space that Motion occupied. So what's going onto that land? The rumored lighthouse restaurant? No. The rumored Schussler Creative Mahogany Bay Classic Old Boats and Great Food restaurant? No. The answer is: Seed & Mulch! A grassy knoll that leads from the pathway down the slope to the water. Yes PI fans, after nearly 3-years of promises of a bold new vision, we're getting grassy lawns!! And very little else.
BIG THANKS TO READER ENFILM FOR SHARING THE PLANS WITH US. VISIT HIS WEBSITE WHICH IS FULL OF DISNEY BLUEPRINTS AT:
|
20 comments:
Nothing to say.....
Yep, confirms what I've been hearing.
So magical...
I guess grassy areas are a pretty bold idea. I mean, who would have guessed that? They beat Universal on this one.
First of all atleast we now what is going on over there.
!Big Whoop! about the grassy lawns.
Now why don't the big boys put their heads together and reopen Comedy warehouse, Mannequines, Adventurer's Club, and 8Trax.
So, all the adults who want to party and have fun CAN !!
P.S
We don't anymore shops or resturaunts we've got enough.
See, I told you they are going to plan corn in there!
Interesting to see kind of talent will be booked in the ampitheather. (What is the estimated seating capacity?) My first impression is a Universal Mardi Gras type entertainment with bands in the twilight of their careers, a la, B-52's, KC & The Sunshine Band, etc.
Don't stop at corn---put in a whole community garden in there. They could charge you $20 for a basket for you to go in there and pick your meal...bold plan to me!!
What if the grassy lawns were planned as a future spot to sit and take in some sort of colorful water show. :P
Tightglove, the Amphitheater will seat unofficially around 100 people. Universal's concert area has room for over 1500. There would be no big acts booked at the Amphitheater. Everything would be outsourced and presumably the same type of acts now playing at the West End Plaza.
Chris, a prior source did report that 5 fountains would be installed in Village Lake from Pleasure Island to the West Side. However, nothing like the water show in Disney California Adventure can be installed here because 1) Village Lake is a live lake with fish and other wildlife & 2) Downtown Disney is free and Disney is NOT going to give away a DCA-caliber show for free. Expect the lawn to have KEEP OFF THE GRASS SIGNS.
Last night I was surprised to see a lot of the grass is already in place. No sign of the ampitheater yet, but no way it could be very big.
Anon 12:33 - NICE!
Backs up everything I've been saying. There is NO contracts signed and no 3rd party's want to touch this thing with a 20 foot pole.
Thanks Bob for all the hard work you put into keeping us informed on what we all had hoped would be the return of our favorite place on earth,Pleasure Island and all our clubs. See you around town soon. Duane & Lyn out here in Christmas.
So no news on any clubs being re opened?
Thanks, Bob, for keeping us up to date on the developments. I wish it were better news, like the return of Adventurers Club. Or at least something innovative and a worthy successor. Yeah, I've been in denial a long time.
And Disney won't need to worry about me keeping off the grass. If this comes to pass, I can't imagine I'll feel drawn to Hyperion Wharf.
good...
now I know I won't be missing anything interesting at Disney and I can spend all money at City Walk
I look forward to the new Amphitheater. It'll give Disney Magic Music Days another venue for High School kids to "perform" at Disney.
The grassy area will provide room for future expansion, much like the empty grass area next to House of Blues near Cirque. Oh, wait.. It's still empty.
What a Bold, New Vision!
Readers, thanks for reading the SAVE PLEASURE ISLAND BLOG. I wish we all could actually haved saved it.
The place belongs to Disney and of course it's their right to do with it what they want. I've said that before. But we as Disney customers have a right to express our opinions and point out to Disney stockholders the absurdity of what has transpired and continues to transpire. Unfortunately, those culpible escape accountability because it's all blamed on the economy when in fact a major revenue stream was needlessly cut-off!
Stay tuned as this saga continues.
Ummm....Am I missing something? The title block on the first page you show is titled "Existing Conditions"
That's just a snippet taken from one of the 15-pages in the blueprints. I did not publish everything.
Post a Comment